Preloader
    

WANSTEAD London swimming Pool Project

 
A Complete Design & Build of Backyard Indoor Swimming Pool – Drinking Quality Water System

Project Description

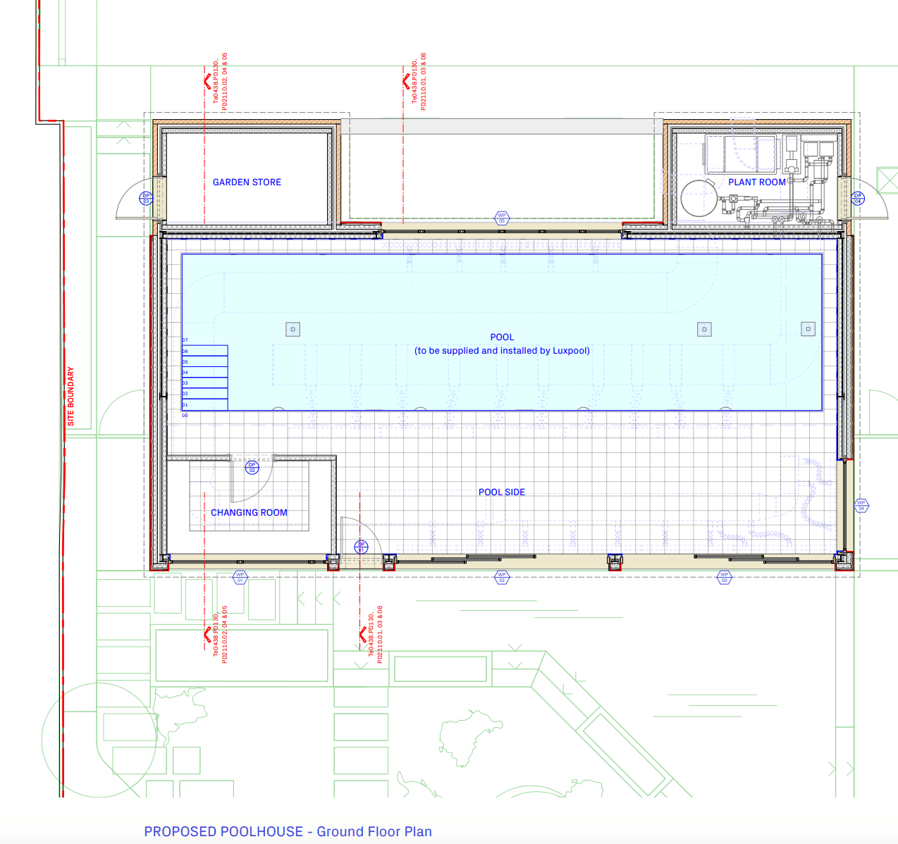
Project Type – Indoor Swimming Pool – Skimmer Type

Pool Size – 15m x 4m x 1.2m 

Location – WANSTEAD London

Dosing System – Drinking Quality Water

Project Brief – Design and build of stunning swimming pool project, transforming a backyard into a luxurious retreat. Sleek pool features, modern finishes and high-quality materials for a flawless aesthetic. To enhance the experience, we incorporated double glass screen to front parameter of enclosures, ensuring a clean and cozy atmosphere. The project also includes hybrid sauna, vital steam room, and experience shower for the ultimate relaxation. Effective AHU to have fresh and warm air circulation to Pool room.

Screenshot 2024 08 26 at 4.48.29 PMswimming pool design

2D/3D Plan

Screenshot 2024 08 26 at 5.29.54 PM
swimming pool V5 5
site 2d plans
london site 2d plans

Before

After